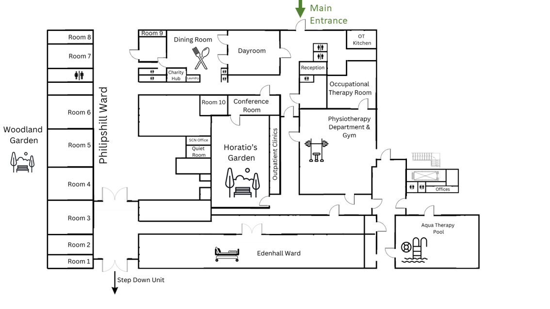
The floor plan below shows the layout of the Unit once you get there. You can also ask a member of staff at the reception desk if you're having trouble finding where you need to go.

The Queen Elizabeth Spinal Injuries Unit is based on the Queen Elizabeth Hospital campus on Govan Road, Glasgow, G51 4TF:
The floor plan below shows the layout of the Unit once you get there. You can also ask a member of staff at the reception desk if you're having trouble finding where you need to go.

Car parking is free but there is a four hour maximum stay in operation Monday to Friday (7:30am - 4:00pm). There are 2 multi-storey car parks for patients and visitors.
There are three disabled parking spaces at the front of the Unit.
For information on public transport to the Unit visit:
or telephone Traveline Scotland on:
08712 002233
In the atrium of the Queen Elizabeth University Hospital main building there is a WH Smith, Marks and Spencer's Simply Food, Souped Up and Juiced, and two cash machines. There is also a Travel Office for advice on public transport to the hospital. On the first floor there is a restaurant and coffee shop, which is open to staff, visitors and patients.
There are vending machines and a seating area on the ground floor of the Institute of Neurological Sciences Building.